

Interior design, identity concept and construction supervision for Ireland's first queer barbershop.
The existing layout of this commercial unit had been awkwardly modified resulting in a disjointed interior that could not meet our clients' brief.
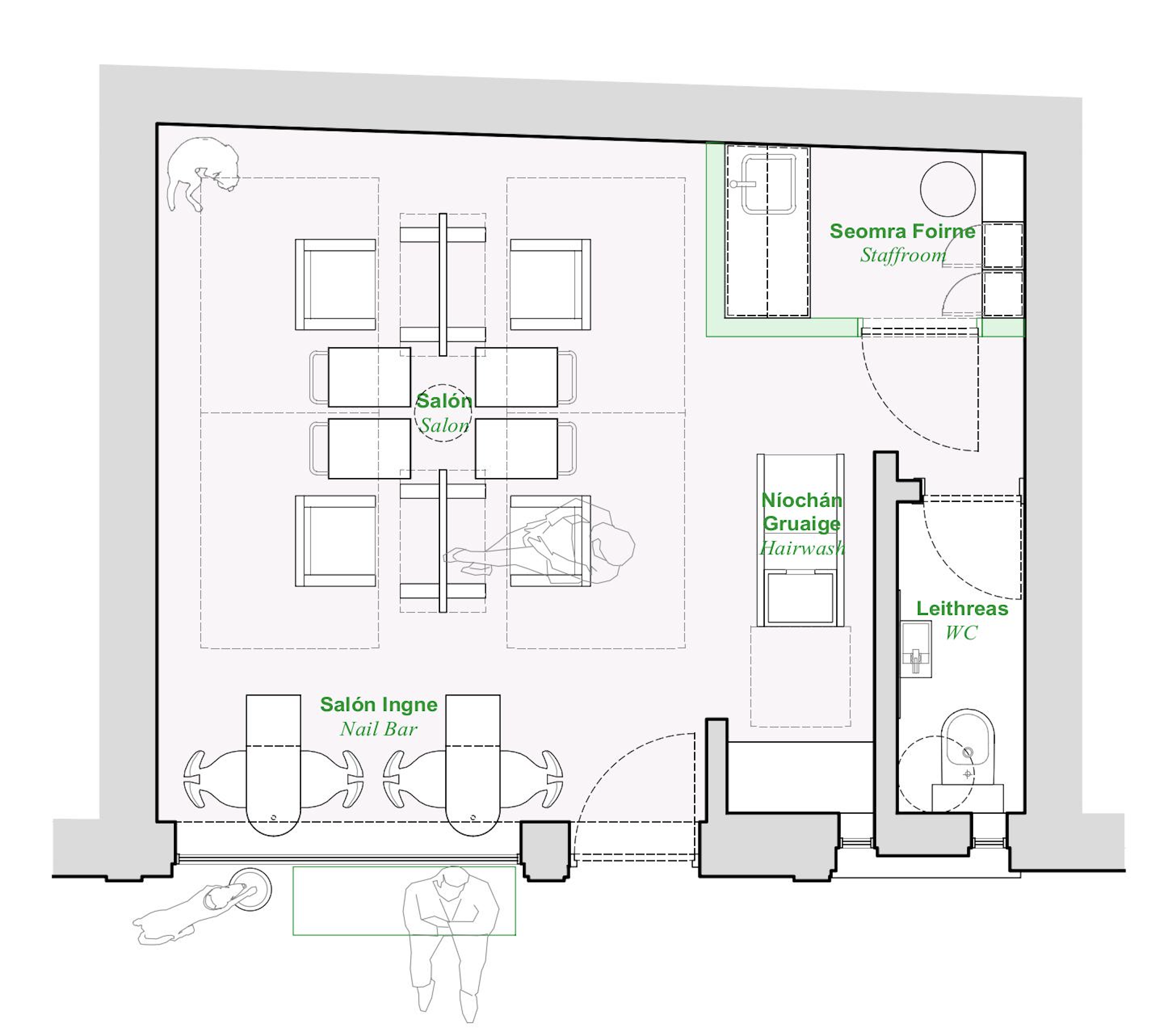
The floor layout was reconfigured creating a generous salon with capacity for 4 hair stations, a hairwashing station, a staff room and a new bathroom.
We developed a bold and cohesive design strategy by borrowing the language of ballet studios & industrial spaces to give queerhawk a flexible but defined and replicable identity.
Two full-height ballet mirrors on casters were used as the main mirrors for hair stations, medical carts were used for the stylists tools & products, ceiling mounted retractable cables free the floor space from wires and plugs, and a big disco-ball hangs from the centre of the ceiling that allows the space to turn into a dance floor.
A colour scheme was developed for the project by contrasting a confident blue colourwash for the shopfront and a bold pink ceiling and light walls for the rest of the space.




The existing layout of this commercial unit had been awkwardly modified resulting in a disjointed interior that could not meet our clients' brief.
The floor layout was reconfigured creating a generous salon with capacity for 4 hair stations, a hairwashing station, a staff room and a new bathroom.
We developed a bold and cohesive design strategy by borrowing the language of ballet studios & industrial spaces to give queerhawk a flexible but defined and replicable identity.
Two full-height ballet mirrors on casters were used as the main mirrors for hair stations, medical carts were used for the stylists tools & products, ceiling mounted retractable cables free the floor space from wires and plugs, and a big disco-ball hangs from the centre of the ceiling that allows the space to turn into a dance floor.
A colour scheme was developed for the project by contrasting a confident blue colourwash for the shopfront and a bold pink ceiling and light walls for the rest of the space.