
Featured on RTÉ's Great House Revival Season 4, Episode 2.
Completed September 2023.
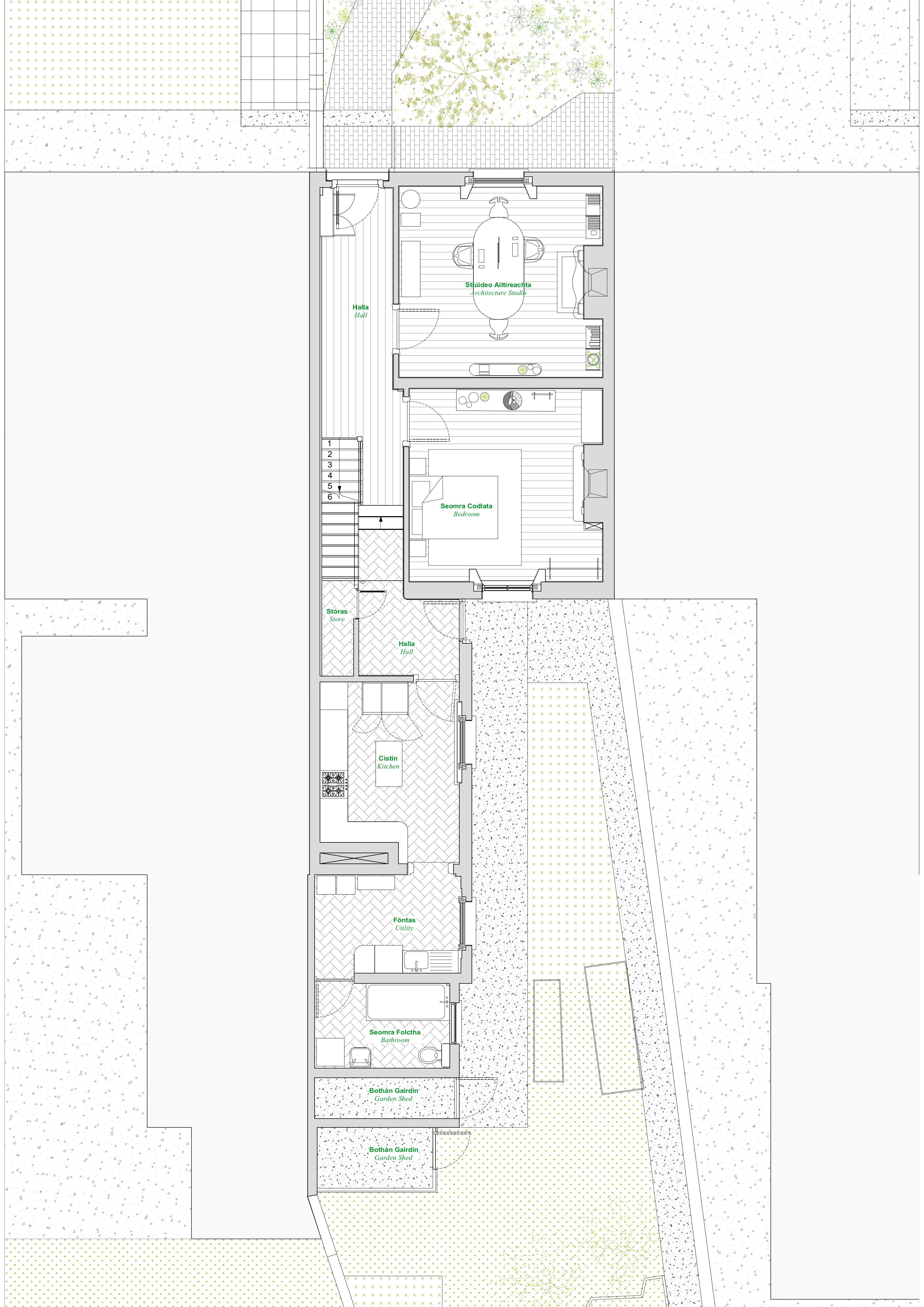
Single-storey residential extension and renovation of a protected structure, in a Victorian terrace in Drumcondra, Dublin 9.
The generous spatial qualities of the original period house are complemented by a unique and expressive contemporary extension creating a new kitchen & dining area in a light-filled volume with generous ceiling heights & views in all directions. The new extension is separated from the main part of the original house with a planted courtyard.
Oversized, slim-frame sliding doors frame the view to the rear garden that will be generously planted with edible plants and fruit trees while the side windows of the extension offer an intimate view of a 19th century cut-stone wall. The roof-lights frame uninterrupted views of the Irish sky, while the abundance of glazing over and around the extension creates a continuous relationship with the surrounding gardens, embracing the Irish weather year round.
The existing return of the house has been re-imagined by positioning a new bathroom, laundry and utility space in the ground floor, and the creation of a new family bathroom at first floor. The main part of the original house has been renovated with energy upgrades, re-wiring and a new heating system, as well as full lighting and interior design scheme throughout.



















The generous spatial qualities of the original period house are complemented by a unique and expressive contemporary extension creating a new kitchen & dining area in a light-filled volume with generous ceiling heights & views in all directions. The new extension is separated from the main part of the original house with a planted courtyard.
Oversized, slim-frame sliding doors frame the view to the rear garden that will be generously planted with edible plants and fruit trees while the side windows of the extension offer an intimate view of a 19th century cut-stone wall. The roof-lights frame uninterrupted views of the Irish sky, while the abundance of glazing over and around the extension creates a continuous relationship with the surrounding gardens, embracing the Irish weather year round.
The existing return of the house has been re-imagined by positioning a new bathroom, laundry and utility space in the ground floor, and the creation of a new family bathroom at first floor. The main part of the original house has been renovated with energy upgrades, re-wiring and a new heating system, as well as full lighting and interior design scheme throughout.